Wiring Diagram For A Furnace

Wiring Diagram For A Furnace

  • Category : A Furnace
  • Post Date : January 27, 2026
Wiring Diagram For A Furnace 9 out of 10 based on 50 ratings. 70 user reviews.

Wiring Diagram For A Furnace

The Cyclone Converter Furnace Process Ccf Total

How To Test The Gas Valve On A Gas Furnace With An

46 Furnace Nozzles 1 One Nozzles 175 60 A Delavan Fuel

Finding The C Wire And Wiring It To The Programmable

Carrier Bryant Furnace Control Circuit Board Lh33wp003a

Metallurgy

Aprilaire 500 Humidifier U0026 Model 60 Humidistat Wiring Help

Connect Bypass Humidifier To Ecobee 3 Thermostat

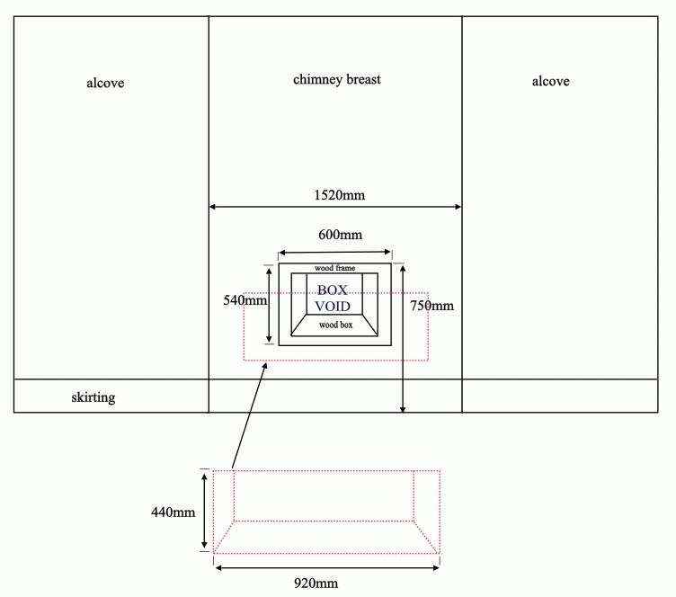
Widening Chimney Breast Space Lintel Width

Gas Valve Wiring

Reznor Hrpd Parts Manuals User Manual

Coleman Presidential Furnace Not Staying Lit

Boiler Manuals Biasi M90 28s Products

Diagram Wiring Diagram For A Furnace

  • Download Wiring Diagram For A Furnace

    draw.io is free online diagram software for making flowcharts, process diagrams, org charts, UML, ER and network diagrams

    Open and edit diagrams online with Draw.io, a free diagram software supporting various formats and diagram types.

    Create a new diagram, or open an existing diagram in your new tab. To create a new diagram, enter a Diagram Name and click the location where you want to save the file.

    Create flowcharts and diagrams online with this easy to use software.

    Create and edit diagrams with draw.io, a free diagramming tool that integrates seamlessly with Office 365.

    Easily import diagrams from Lucidchart to diagrams.net or draw.io with this simple tool.

    Access and integrate Google Drive files with Draw.io using the Google Picker tool for seamless diagram creation.

    Clearing Cached version 29.3.4... OK Update Start App

    confEmbedUpload=For a better editing experience, please use the regular draw.io macro to insert a blank diagram, then from (File menu → Import From → Device...) select the file you want to upload and embed.

    If you enter personal information into a diagram and perform an action that requires us to send that diagram to a server for processing, your personal data may be processed on that server, but never stored.

    3 way switch,3 way switch wiring,3 way switch wiring diagram pdf,3 way wiring diagram,3way switch wiring diagram,4 prong dryer outlet wiring diagram,4 prong trailer wiring diagram,6 way trailer wiring diagram,7 pin trailer wiring diagram with brakes,7 pin wiring diagram,alternator wiring diagram,amp wiring diagram,automotive lighting,cable harness,chevrolet,diagram,dodge,doorbell wiring diagram,ecobee wiring diagram,electric motor,electrical connector,electrical wiring,electrical wiring diagram,ford,fuse,honeywell thermostat wiring diagram,ignition system,kenwood car stereo wiring diagram,light switch wiring diagram,lighting,motor wiring diagram,nest doorbell wiring diagram,nest hello wiring diagram,nest labs,nest thermostat,nest thermostat wiring diagram,phone connector,pin,pioneer wiring diagram,plug wiring diagram,pump,radio,radio wiring diagram,relay,relay wiring diagram,resistor,rj45 wiring diagram,schematic,semi-trailer truck,sensor,seven pin trailer wiring diagram,speaker wiring diagram,starter wiring diagram,stereo wiring diagram,stereophonic sound,strat wiring diagram,switch,switch wiring diagram,telecaster wiring diagram,thermostat wiring,thermostat wiring diagram,trailer brake controller,trailer plug wiring diagram,trailer wiring diagram,user guide,wire,wire diagram,wiring diagram,wiring diagram 3 way switch,wiring harness

    close