Plc Scada Wiring Diagram

Plc Scada Wiring Diagram

  • Category : Wiring Diagram
  • Post Date : January 26, 2026
Plc Scada Wiring Diagram 9 out of 10 based on 20 ratings. 60 user reviews.

Plc Scada Wiring Diagram

Plcpis - A New Zip Plcpi

Canus Corporation Blog

Scada Block Diagram

What Is Scada Scada Systems For Electrical Distribution

Process Conrol Process Diagram Component Vc Source Code Hmi Scada Industrial Control

Technical Specification Of 11 Kv Scada Controlled Indoor Switchgear With Interlocking Diagrams

Ats Automatic Transfer Switch - Electrical

Plc Wiring Diagram

Schematic Learning Zen Diagram Schematics Electrical Engineering Stack Exchange

Can We Use Plc Instead Of Relays

Scada Control Of A Water Pumping Station

Boilers Wiring Diagrams And Manuals

Memoire Online Ems System On

Block Diagram Of Scada In Power System

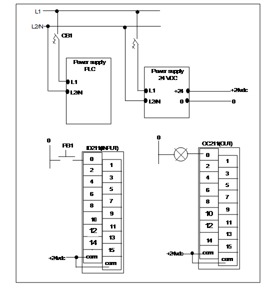
Plc And Scada Example Of Input Output Wiring Diagram Plc

Rtu Scada

The Motahda Company

Automation Slides Plc Scada Hmi

Siemens Motor Wiring Diagram

Wircam Environment

Plc Operation Programming Troubleshooting And Maintenance

Project 1 - Water Pumping Station

Plc Scada By Bhushan Kumbhalkar

4 Qube Technologies

Can We Use Plc Instead Of Relays

Electrical1

Presentaton On Plc U0026 Scada

Distributed Combination I O

Expansion I O Module At-io8

Ei Information Systems

Plc And Scada

Scada System Architecture Diagrams Free Download Wiring Diagram

Electrical Wiring Diagram Switches Symbols - Electrical

Block Diagram Of A Plc

Programmable Logic Controller Plc Performing Local Control Functions Physically Separated

Services U2013 Pacific Hydro Control Llc

Wireless Scada I O Expansion Modules

Pin By Seo Accudata On Walco Solutions In 2019

Scadapack 334 Wiring Diagram 28 Wiring Diagram Images

Deterministic Ethernet And Tsn

Controls By Jules Bartow Goldvein Power U0026 Automation Technologies

Difference Between Relays And Plcs

Working Of Interposing Relays In Plcs - Industrial Networking

Working Of Interposing Relays In Plcs - Industrial Networking

Plc And Scada Servo Motor

Kursus Plc Pelatihan Plc Hmi Scada Jakarta Depok Bekasi Tangerang

Siemens Motor Wiring Diagram

Plc Control Panel Wiring Diagram On Plc Panel Wiring Diagram

Reliance Scada In Istanbul

Scadapack 334 Wiring Diagram 28 Wiring Diagram Images

Plc Scada And It U0026 39 S Accessories Tutorial Dan Aplikasi Zelio Smart Relay Pada Simple Traffic Light

Alstom Numerical Feeder Protection Relay Agile P14db Protocol Available Iec103

Opsec

To A 3 Phase Motor Wiring A Vfd

Tomahawk Water Meter Wiring Diagram 35 Wiring Diagram Images

Scada Architecture

Diagram Plc Scada Wiring Diagram

  • Download Plc Scada Wiring Diagram

    draw.io is free online diagram software for making flowcharts, process diagrams, org charts, UML, ER and network diagrams

    Open and edit diagrams online with Draw.io, a free diagram software supporting various formats and diagram types.

    Create a new diagram, or open an existing diagram in your new tab. To create a new diagram, enter a Diagram Name and click the location where you want to save the file.

    Easily import diagrams from Lucidchart to diagrams.net or draw.io with this simple tool.

    Create and edit diagrams with draw.io, a free diagramming tool that integrates seamlessly with Office 365.

    Create flowcharts and diagrams online with this easy to use software.

    app.diagrams.net

    Access and integrate Google Drive files with Draw.io using the Google Picker tool for seamless diagram creation.

    Clearing Cached version 29.3.4... OK Update Start App

    7.2 The Software will initiate transfers of data forming part of the Diagrams (“Diagram Data”) to services supplied by third parties when you expressly request conversion of Diagrams: a. to another supported file format; and b. to PDF format.

    3 way switch,3 way switch wiring,3 way switch wiring diagram pdf,3 way wiring diagram,3way switch wiring diagram,4 prong dryer outlet wiring diagram,4 prong trailer wiring diagram,6 way trailer wiring diagram,7 pin trailer wiring diagram with brakes,7 pin wiring diagram,alternator wiring diagram,amp wiring diagram,automotive lighting,cable harness,chevrolet,diagram,dodge,doorbell wiring diagram,ecobee wiring diagram,electric motor,electrical connector,electrical wiring,electrical wiring diagram,ford,fuse,honeywell thermostat wiring diagram,ignition system,kenwood car stereo wiring diagram,light switch wiring diagram,lighting,motor wiring diagram,nest doorbell wiring diagram,nest hello wiring diagram,nest labs,nest thermostat,nest thermostat wiring diagram,phone connector,pin,pioneer wiring diagram,plug wiring diagram,pump,radio,radio wiring diagram,relay,relay wiring diagram,resistor,rj45 wiring diagram,schematic,semi-trailer truck,sensor,seven pin trailer wiring diagram,speaker wiring diagram,starter wiring diagram,stereo wiring diagram,stereophonic sound,strat wiring diagram,switch,switch wiring diagram,telecaster wiring diagram,thermostat wiring,thermostat wiring diagram,trailer brake controller,trailer plug wiring diagram,trailer wiring diagram,user guide,wire,wire diagram,wiring diagram,wiring diagram 3 way switch,wiring harness

    close