Esb Oasis Wiring Diagram

Esb Oasis Wiring Diagram

  • Category : Wiring Diagram
  • Post Date : January 26, 2026
Esb Oasis Wiring Diagram 9 out of 10 based on 40 ratings. 30 user reviews.

Esb Oasis Wiring Diagram

Forest River Shasta Oasis Wiring Diagram

Oasis Model Pfse1shs Wiring Diagram

Oasis Trailer Wiring Diagram

Sew Motor Wiring Diagram

Catv Wiring For Cctv System Kenmore Oasis Dryer Wiring Diagram Rs For Cable Tv Wiring Diagrams

Oasis Trailer Wiring Diagram

Kenmore Elite Dryer Heating Element Wiring Diagram Download

Kenmore Elite Dryer Model 110

Metra Speaker Wiring Diagrams U2013 Travelersunlimited Club

60 Beautiful Honda Gx390 Charging System Wiring Diagram Images

60 Inspirational Mx341 Avr Wiring Diagram Pics

1978 Honda Pa50 Wiring Diagram Free Download U00e2 U00a2 Oasis U2013 Ambrasta Com

Trailer Wiring Diagram Wire Center Co Amp Electrical System Winnebago Chieftain Diagrams

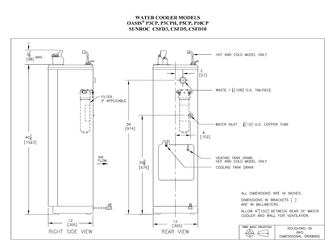
Oasis Water Dispenser Parts

Softcomm Atc 4p Wiring Diagram

Isuzu Oasis 1998 - 1999 - Fuse Box Diagram

Kenmore Elite Dryer Heating Element Wiring Diagram Download

Kenmore Elite Dryer Heating Element Wiring Diagram Download

Isuzu Oasis 1998 - 1999 - Fuse Box Diagram

Norlake Wiring Diagrams

Oasis Cp3 Cp5 Breakdown

Oasis Machinery Dc2000 Heavy Duty 2 Hp Wood Dust Collector 220v

Elkay Enlzstl8ws 1f Parts Breakdown

Gravely 985106 000101

In Rotary Engine Ls1 Coil Wiring Diagram

12 Volt Oil Burner Schematic

Kenmore Elite Dryer Parts

Transfer Flow Trax Ii Wiring Diagram Free Download U00e2 U00a2 Oasis U2013 Ambrasta Com

Happy Birthday Siebel Systems U2013 U6570 U636e U5e93 U6570 U636e U6062 U590d U670d U52a1 U70ed U7ebf Uff1a13764045638 Qq 47079569

Sew Eurodrive Wiring

Diy Cigar Oasis Wifi U2013 Bracket Dojo

Discount Spas Toys

Aquawise

Forest River Shasta Oasis Wiring Diagram

Dryer Thermostat Kenmore Elite Heating Element Wiring Diagram Heater Cycling Replacement With

Kenmore Elite Dryer Heating Element Wiring Diagram Download

Sony Cdx Gt40uw Wiring Diagram

Takeuchi Tl130 Wiring Diagram

Kenmore Elite Oasis Dryer Manual

Pioneer Deh X8600bh Wiring Diagram Free Download U00e2 U00a2 Oasis U2013 Ambrasta Com

60 Beautiful Honda Gx390 Charging System Wiring Diagram Images

Wiring Diagram For Eclipse Avn5435

Elkay Enlzs8ws 1f Breakdown

Palfinger T40 Hooklift Wiring Diagram Free Download U2022 Oasis

Isuzu Oasis 1998 - 1999 - Fuse Box Diagram

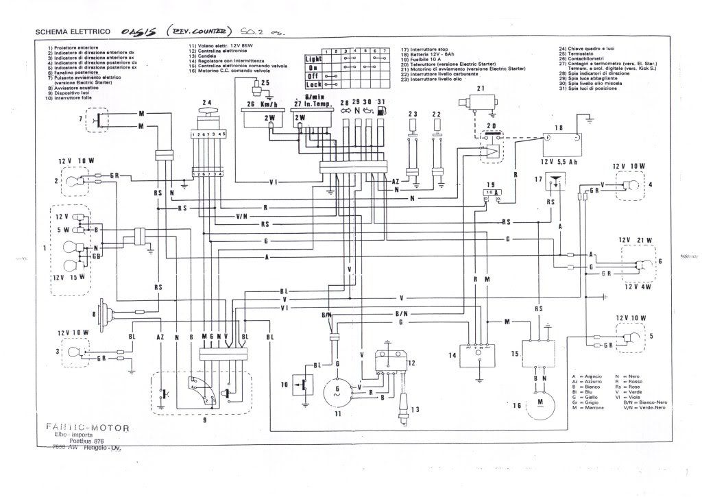
Fantic Oasis 80

Crf250x Wiring Diagram Free Download U2022 Oasis

27 Replacement Parts For Water Fountains Elkay Water Fountain Replacement Parts Engine Diagram

Nissan Frontier Fog Light Wiring Diagram Free Download U2022 Oasis

260 Linhia Wire Harness Diagram Free Download U00e2 U00a2 Oasis U2013 Diagram Database

Oase Proficlear Guard Spare Parts

Carefree Awning Parts Diagram Fiesta Rv Colorado Ideas

Aquawise

Toyota 4age Alternator Wiring

Pioneer Avh 291bt Wiring Diagram

Kenmore Elite Dryer Heating Element Wiring Diagram Download

Diagram Esb Oasis Wiring Diagram

  • Download Esb Oasis Wiring Diagram

    draw.io is free online diagram software for making flowcharts, process diagrams, org charts, UML, ER and network diagrams

    Open and edit diagrams online with Draw.io, a free diagram software supporting various formats and diagram types.

    Create a new diagram, or open an existing diagram in your new tab. To create a new diagram, enter a Diagram Name and click the location where you want to save the file.

    Create flowcharts and diagrams online with this easy to use software.

    Create and edit diagrams with draw.io, a free diagramming tool that integrates seamlessly with Office 365.

    app.diagrams.net

    Easily import diagrams from Lucidchart to diagrams.net or draw.io with this simple tool.

    Access and integrate Google Drive files with Draw.io using the Google Picker tool for seamless diagram creation.

    Clearing Cached version 29.3.4... OK Update Start App

    confEmbedUpload=For a better editing experience, please use the regular draw.io macro to insert a blank diagram, then from (File menu → Import From → Device...) select the file you want to upload and embed.

    3 way switch,3 way switch wiring,3 way switch wiring diagram pdf,3 way wiring diagram,3way switch wiring diagram,4 prong dryer outlet wiring diagram,4 prong trailer wiring diagram,6 way trailer wiring diagram,7 pin trailer wiring diagram with brakes,7 pin wiring diagram,alternator wiring diagram,amp wiring diagram,automotive lighting,cable harness,chevrolet,diagram,dodge,doorbell wiring diagram,ecobee wiring diagram,electric motor,electrical connector,electrical wiring,electrical wiring diagram,ford,fuse,honeywell thermostat wiring diagram,ignition system,kenwood car stereo wiring diagram,light switch wiring diagram,lighting,motor wiring diagram,nest doorbell wiring diagram,nest hello wiring diagram,nest labs,nest thermostat,nest thermostat wiring diagram,phone connector,pin,pioneer wiring diagram,plug wiring diagram,pump,radio,radio wiring diagram,relay,relay wiring diagram,resistor,rj45 wiring diagram,schematic,semi-trailer truck,sensor,seven pin trailer wiring diagram,speaker wiring diagram,starter wiring diagram,stereo wiring diagram,stereophonic sound,strat wiring diagram,switch,switch wiring diagram,telecaster wiring diagram,thermostat wiring,thermostat wiring diagram,trailer brake controller,trailer plug wiring diagram,trailer wiring diagram,user guide,wire,wire diagram,wiring diagram,wiring diagram 3 way switch,wiring harness

    close